公众号
手机站
   
信息披露

INFORMATION

海南省残疾人基金会办公场所室内装修遴选公告
来源: | 作者:海南残基会 | 发布时间: 2025-12-18 | 746 次浏览 | 🔊 点击朗读正文 ❚❚ | 分享到:

为进一步改善办公环境,提升服务效能,更好地保障残疾人权益服务工作开展,根据《海南省残疾人基金会采购管理办法》相关规定,就新办公场所室内装修项目开展公开遴选,择优确定具备相应资质和能力的服务单位。现将有关事项公告如下:

一、项目基本情况

1.项目名称:海南省残疾人基金会办公场所室内装修项目

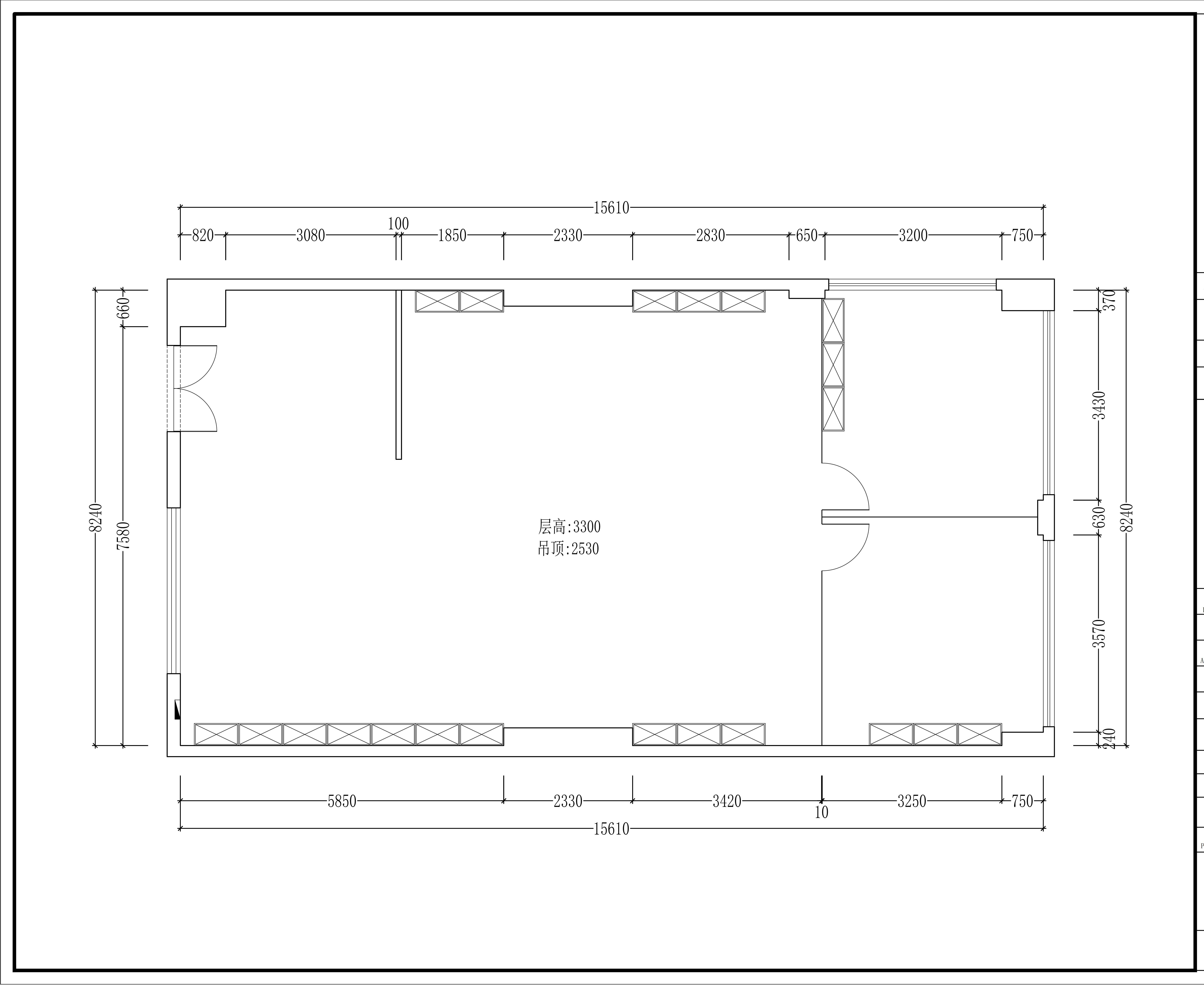
2.项目地点:海口市华夏银行大厦15楼02房

3.项目概况:本项目为新办公场所室内装修改造工程,改造面积约190平方米,核心改造内容包括但不限于:水电线路更新、墙面翻新及吊顶装修、功能分区规划与墙体改造等,需严格符合室内装修工程建设标准。

4.项目预算:人民币15.8万元(含税),超出预算的参选报价将被拒绝。

5.服务周期:自合同签订之日起[30]日历天内完成全部改造工程并通过验收。

二、报价文书要求

(一)报价要求

最高限价人民币 15.8万元(含税),超过最高限价的报价为无效报价,报价需提供测算明细。

(二)参选文件

参选单位提交的参选文件根据评分标准装订资料,需用文件袋密封并在封口处加盖单位印章,至少包含以下内容:

1.营业执照(复印件加盖公章);

2.法定代表人授权委托书、联系人及联系方式(加盖单位印章、双方签字)及委托代理人身份证复印件(1份)

3.在“信用中国”网站(www.creditchina.gov.cn)未被列入失信被执行人、重大税收违法失信主体(失信被执行人查询以中国执行信息公开网http://zxgk.court.gov.cn为准),在中国政府采购网(www.ccgp.gov.cn)未被列入政府采购严重违法失信行为记录名单的查询结果网页截图(自公告发布之日至递交参选文件之日期间,加盖单位公章);

4.具有良好的商业信誉和健全的财务会计制度(提供承诺函加盖公章,格式自拟);

5.项目整体设计方案及报价书(设计方案图、施工方案、装修清单报价、工期承诺);

6.项目施工总承包(含材料 (板材、涂料、玻璃等) 品牌、规格、质量与安全保障等,提供承诺函加盖公章,格式自拟);

7.工程监理服务(含施工质量监督、进度管控、竣工验收等);

8.后续质保期内的维修维护服务(提供承诺函加盖公章,格式自拟)。

三、参选单位资格要求

1.具有中华人民共和国境内独立承担民事责任能力的法人或其他组织,持有有效的营业执照;

2.具备相应的项目实施能力,拥有专业的设计团队、施工队伍及技术人员,能够保障项目按时、按质完成;

3.具有良好的商业信誉和健全的财务会计制度,近三年在经营活动中无重大违法记录;

4.近三年内有类似室内装修项目建设经验者优先考虑;

5.未被列入“信用中国”网站失信被执行人、重大税收违法失信主体名单,未被列入政府采购严重违法失信行为记录名单;

6.本项目不接受转包、违法分包,单位负责人为同一人或存在直接控股、管理关系的不同单位不得同时参选。

四、报名及遴选相关事宜

(一)报名时间及方式

1.报名时间:自公告发布之日起5个工作日内,2025年12月18日--2025年12月24日,逾期递交的文件将被拒收;

2.报名地点:海口市美兰区国瑞城·铂仕苑三栋一单元4楼3A01;

3.报名要求:提交参选文件密封包装并加贴封条,在封套封口处加盖密封章或公章,封面和封套面需标明项目名称、参选人名称(加盖公章)、联系人姓名及联系电话。

(二)资格审查

我会将组织评审小组对报名单位提交的材料进行资格审查。

(三)评审

采用综合评分法,择优确定中选单位。

(四)公示

评审结束后,将在海南省残疾人基金会官网上公示遴选结果,公示期为3个工作日。

五、其他事项

1. 参选单位应保证所提交材料的真实性、合法性和完整性,若存在弄虚作假行为,一经查实将取消参选资格,并列入我会合作黑名单;

2. 本次遴选不收取报名费及评审费,参选单位参与遴选过程中产生的一切费用均由自身承担;

3. 本公告最终解释权归海南省残疾人基金会所有。

六、联系方式

地址:海南省海口市美兰区五指山南路6号国瑞城铂仕苑3栋1单元4楼3A01室

联系人:李倩云

电话:17789778660

咨询时间:工作日 9:00-11:30,14:30-17:30


附件:

1.海南省残疾人基金会办公场所平面图

2.海南省残疾人基金会办公场所室内装修清单

3.海南省残疾人基金会办公场所升级改造项目评分标准



海南省残疾人基金会

2025年12月18日